Collier Preserve, Powell’s newest outdoor amenity, is coming together, thanks to a variety of grants. Carol Evans, executive director of Legacy Parks Foundation, spoke Tuesday to the Powell Business & Professional Association.
“We own the property and will implement the grants,” Evans said. “We’ll develop the park and then turn it over to Knox County. We’re not into long-term property management.”
The 12-acre site, adjacent to Powell Branch Library, was donated to Legacy Parks in December 2016 by Dr. Bob Collier, whose grandmother, Stella Moore Collier, farmed the land as did her ancestors.
Evans listed the money that’s ear-marked for the Collier park:
- $200,000 RTP grant from the state of Tennessee
- $10,000 grant for Beaver Creek water trail from Randy Burleson of Aubrey’s Restaurants, from his Hoppy Trails promotion
- $9,000 from the TVA Retirees Association for benches
Then she ceded the floor to Knox County Commissioner Charles Busler who announced a $20,000 grant to install put-ins/take-outs on Beaver Creek. That grant will be administered by Legacy Parks Foundation and will require the signature of an officer of Enhance Powell, a committee of the PBPA.
Enhance Powell will meet at 4 p.m. Tuesday, Sept. 18, at LifeHouse Coffee on Brickyard Road to discuss sites for put-ins.

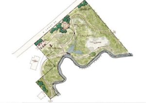
This site map shows what’s coming to Collier Preserve. (Submitted by Legacy Parks Foundation)
Beaver Creek is a great resource, Evans said. She reminded the crowd that Clayton Park in Halls was Legacy Parks’ first project. “I tell people that the community raised the money (to buy land on Beaver Creek for the park) and we just ran it through our bank account.”
Legacy Parks also handled grant funding and construction of the Harrell Road stormwater park on Beaver Creek, which opened in May 2017 and is managed now by Knox County Parks & Rec. That park boasts a state-of-the art put-in for kayaks and canoes and is supported by the Beaver Creek Kayak Association. This two-minute clip from WBIR-TV dramatizes the fun on Beaver Creek.
And Evans said that’s the whole point. Recreation drives economic development.
“People my age got a job and went where the company sent them. (That’s how Carol and her husband, the late John Evans, got to Knoxville.)
“Our children decide where they want to live, move there and then find a job. … Quality of life is a great differential in choosing where to live and put a business. People want amenities (like Beaver Creek).”
She advocated “a healthy balance” among commercial, residential and natural spaces.
A criticism has been massive delays in bringing a new park online. (Both Harrell Road and Clayton Park took about 10 years.) Evans is tackling that head-on. “We’ve got the land and the money to do it right. We’ll start work this winter.”
Also, at PBPA: Laura Bailey said the Powell Lions Club will sponsor a countywide Fall Festival on Saturday, Oct. 6. Details soon.
Matt Mercer announced a community clean-up for Saturday, Sept. 29, with volunteers gathering at Powell Station Park at 10 a.m. Everyone is invited. First Baptist Powell hopes to make this a quarterly event.
Austin White said nominations for Powell’s man, woman and businessperson of the year can be made online at www.powellbusiness.com. Dr. Donald Wegener chairs the committee.
Dr. Shanna Sparks said PBPA has 138 members with a goal of 140. (Last year’s goal was 100.)